Das besondere Holzhaus
Wohnfläche: ca. 130 m²
Wohnhausanbieter: Natur Point Unger (im Netzwerk regionaler Anbieter)
Details:
Dieses erstklassige Wohnhaus ist der Traum für jeden, der Wert auf eine ökologische und gesundheitsunbedenkliche Bauweise legt und dabei noch Energiekosten sparen möchte. Das moderne Einfamilienhaus wurde in diffusionsoffener Holzständerbauweise errichtet und mit Zellulosedämmung, Holzfaserdämmplatten, sowie Silikatputz versehen. Abgerundet wird das energetisch durchdachte, hochwertigst verarbeitete Haus durch dreifach Isolierglasfenster mit Alu-Vorsatzschalen und die im Erdgeschoss sowie Bädern verlegte Fußbodenheizung.
Innovative Materialien und hochwertigste Verarbeitung sorgen für Langlebigkeit und optimales Raumklima zum „Wohlfühlen“. Im Erdgeschoss bieten die geräumige Wohn-Küche und das Wohnzimmer auf etwa 54 m² genügend Platz für eine familiäre Kommunikation und Behaglichkeit. Direkt am Wohnzimmer liegt auch die nach Süden ausgerichtete, großzügige Terrasse mit Blick in die Umgebung.
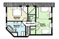
In der oberen Etage befinden sich 2 Schlafzimmer und auf Wunsch, mediterran gestaltetes Badezimmer, mit Doppelwaschtisch, großer Badwanne, viel Raum und einer Sitzecke.
Durch gezielt gesetzte Details wie die offene Holzbalkendecke in der Küche, Echtholztüren und individuellen Fliesenformaten in den Bädern wird diesem ökologischen Holzständerbau eine ganz besondere Aura verliehen. Für gemütliche Stunden zu zweit oder auch für größere gesellige Runden unter Freunden ist ein Kamin vorhanden.
Nähere detaillierte Baubeschreibung und Preisinformationen auf Anfrage jederzeit gern bei uns!
Zum Vergrößern anklicken








